Spring naar inhoud
  • Grootste aanbod huurwoningen
  • Automatiseer jouw zoektocht
  • Direct updates bij nieuw aanbod
  • Vertrouwd sinds 2010
  • Grootste aanbod huurwoningen
  • Grootste aanbod huurwoningen
  • Automatiseer jouw zoektocht
  • Direct updates bij nieuw aanbod
  • Vertrouwd sinds 2010
  • Grootste aanbod huurwoningen
    Nieuw

    Huis Koestraat in Schoonhoven

    Bekijk kaart
    2871 DR (Schoonhoven-Oude Stad)
    € 2.000 per maand
    • 244 m²
    • 5 kamers
    • 1880

    Over deze woning

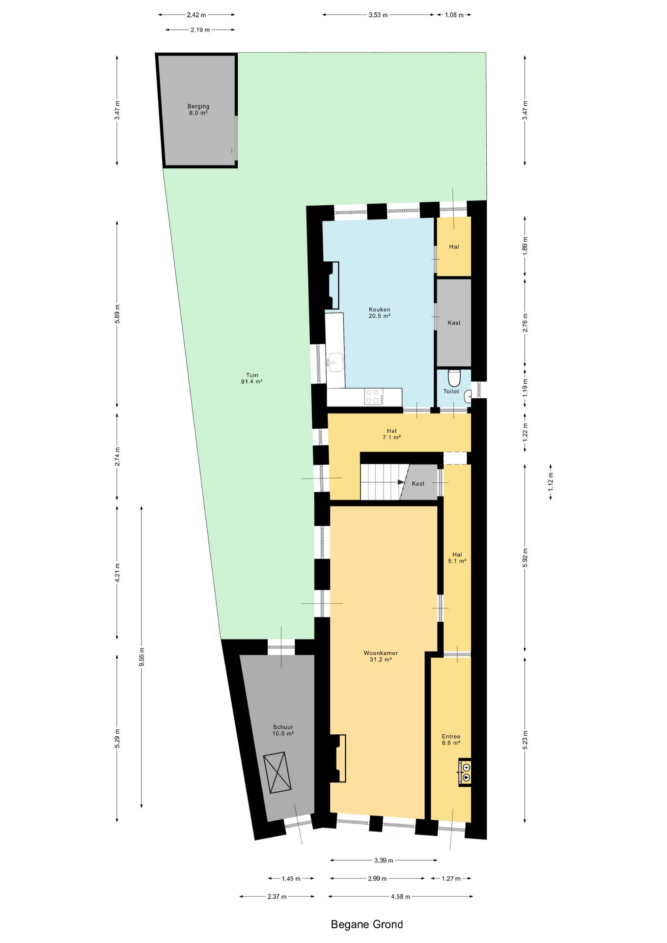
    In de historische binnenstad van Schoonhoven staat een monumentaal herenhuis met een rijke historie. Voorheen een vrouwenklooster, is het pand nu een statige woning vol karakter. Bij binnenkomst ervaar je hoge plafonds, fraai stucwerk en authentieke plavuizen. De klassieke indeling omvat een ...

    Overdracht

    Huurprijs
    € 2.000 per maand
    Prijs per m²
    € 8
    Aangeboden sinds
    17-04-2026
    Status
    Te huur
    Beschikbaar
    Per direct

    Oppervlakte en inhoud

    Woonoppervlakte
    244 m²

    Bouw

    Type woning
    Huis Bekijk alle huizen in Schoonhoven
    Soort woning
    Tussenwoning (rijtjeshuis), Eengezinswoning
    Soort bouw
    Bestaande bouw
    Bouwjaar
    1880

    Indeling

    Aantal kamers
    5
    Aantal slaapkamers
    4
    Aantal badkamers
    1
    Voorzieningen
    Bad

    Buitenruimte

    Tuin
    Aanwezig
    Dakterras
    Niet aanwezig

    Energie

    Energielabel
    F

    Door aanbieder geplaatst met beschikbaarheidscontrole.

    Voorzieningen in de buurt

    Contact met de verhuurder

    Door te reageren op de woning kom je rechtstreeks in contact met de verhuurder of de makelaar van de verhuurder.

    Maak een account aan

    Vul je e-mailadres in om een account aan te maken en om contact op te kunnen nemen met de verhuurder.

    Vergelijkbare woningen

    Oranjeplaats

    2871TL Schoonhoven (Schoonhoven-Oude Stad)
    € 1.950 per maand

    Voorhaven

    2871CH Schoonhoven (Schoonhoven-Oude Stad)
    € 1.920 per maand

    Amaliahof

    2851XL Haastrecht (Hofkamp)
    € 2.050 per maand

    Buitendams

    3371BM Hardinxveld-Giessendam (Giessendam-West)
    € 1.950 per maand

    Buizerdhof

    2903GR Capelle aan den IJssel (Hovenbuurt)
    € 1.950 per maand

    Dr. Marga Klompéhof

    2811LN Reeuwijk (Reeuwijk-Dorp Kern)
    € 1.750 per maand

    Hoogstraat

    4285AG Woudrichem (Woudrichem noord)
    € 1.995 per maand

    Kruidenierweg

    3401GG IJsselstein (Achterveld-West)
    € 2.350 per maand

    Paganinistraat

    2901KG Capelle aan den IJssel (Paganinibuurt)
    € 1.995 per maand

    Bongerd

    3344DA Hendrik-Ido-Ambacht (Volgerlanden-West)
    € 1.850 per maand

    Nieuwste woningen in Schoonhoven

    Oranjeplaats

    € 1.950 per maand

    Voorhaven

    € 1.920 per maand

    Voorhaven

    € 1.920 per maand

    Voorhaven

    € 1.920 per maand

    Laat ons je op de hoogte houden van vergelijkbare woningen!

    Actieve filters

    • Schoonhoven
    • Huis
    • Prijs vanaf € 1.750
    • Prijs tot € 2.000
    Enkel beschikbaar voor woningruil

    Woningruil is een proces waarbij twee huurders permanent van huurwoning ruilen.

    Om te kunnen ruilen, moeten beide partijen een huurwoning hebben, en de ruil is onder voorbehoud van goedkeuring door de verhuurders.

    Meer weten over woningruil? Lees hier meer over