• Grootste aanbod huurwoningen
  • Automatiseer jouw zoektocht
  • Direct updates bij nieuw aanbod
  • Vertrouwd sinds 2010
  • Grootste aanbod huurwoningen
  • Grootste aanbod huurwoningen
  • Automatiseer jouw zoektocht
  • Direct updates bij nieuw aanbod
  • Vertrouwd sinds 2010
  • Grootste aanbod huurwoningen
    Advertentie gearchiveerd

    Appartement Peppelweg in Rotterdam

    Bekijk kaart
    3053 GM (Schiebroek)
    € 1.340 per maand
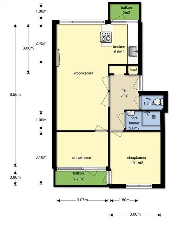
    • 57 m²
    • 3 kamers
    • Gemeubileerd

    Samenvatting

    • De portiekflat staat sinds 2 maanden te huur op Huurwoningen;
    • De oppervlakte van deze woning is 57 m²;
    • Voor deze woning betaal je een huurprijs van € 1.340 per maand;
    • Deze huurwoning wordt gemeubileerd opgeleverd;
    • Deze huurwoning ligt in de wijk Schiebroek;
    • Deze woning beschikt over douche, toilet;
    • Deze woning heeft energielabel B;
    • Er zijn geen zonnepanelen aanwezig.

    Oppervlakte en inhoud

    Woonoppervlakte
    57 m²
    Inhoud
    135 m³

    Bouw

    Type woning
    Appartement Bekijk alle appartementen in Rotterdam
    Soort woning
    Portiekflat, Appartement
    Soort bouw
    Bestaande bouw
    Bouwjaar
    1958
    Ligging
    • In een woonwijk
    • Nabij het openbaar vervoer

    Indeling

    Aantal kamers
    3
    Aantal slaapkamers
    2
    Aantal badkamers
    1
    Aantal woonlagen
    1
    Verdieping
    5
    Woonlagen complex
    4
    Voorzieningen
    • Douche
    • Toilet

    Buitenruimte

    Balkon
    Aanwezig
    Tuin
    Niet aanwezig
    Dakterras
    Niet aanwezig

    Energie

    Energielabel
    B

    Bergruimte

    Schuur/Berging
    Niet aanwezig

    Parkeergelegenheid

    Aanwezig
    Ja
    Soort parkeergelegenheid
    Openbaar

    Garage

    Aanwezig
    Nee

    Huurvoorwaarden

    Roken toegestaan
    Nee
    Huisdieren toegestaan
    Nee

    Door aanbieder geplaatst met beschikbaarheidscontrole.

    Nieuwste woningen in Rotterdam

    Wijnbrugstraat

    € 2.550 per maand

    Oudedijk

    € 1.104 per maand

    Van Vlooswijkstraat

    € 2.750 per maand

    Wilhelminakade

    € 3.745 per maand

    Bergweg

    € 1.694 per maand

    Baroniestraat

    € 2.850 per maand

    Laat ons je op de hoogte houden van vergelijkbare woningen!

    Actieve filters

    • Rotterdam
    • Appartement
    • Prijs vanaf € 1.300
    • Prijs tot € 1.400
    Enkel beschikbaar voor woningruil

    Woningruil is een proces waarbij twee huurders permanent van huurwoning ruilen.

    Om te kunnen ruilen, moeten beide partijen een huurwoning hebben, en de ruil is onder voorbehoud van goedkeuring door de verhuurders.

    Meer weten over woningruil? Lees hier meer over