Spring naar inhoud
  • Grootste aanbod huurwoningen
  • Automatiseer jouw zoektocht
  • Direct updates bij nieuw aanbod
  • Vertrouwd sinds 2010
  • Grootste aanbod huurwoningen
  • Grootste aanbod huurwoningen
  • Automatiseer jouw zoektocht
  • Direct updates bij nieuw aanbod
  • Vertrouwd sinds 2010
  • Grootste aanbod huurwoningen

    Appartement Sir Winston Churchilllaan in Rijswijk

    Bekijk kaart
    2288 DA (Plaspoelpolder)
    € 3.000 per maand
    • 210 m²
    • 4 kamers
    • Gestoffeerd

    Over deze woning

    For English see below. Uniek riant ruim en licht 3-slaapkamer appartement, dit komt zelden op de markt. Gelegen op de negende verdieping van een modern appartementencomplex in Rijswijk, biedt dit ruime hoekappartement met drie slaapkamers een panoramisch uitzicht op Delft en Rotterdam. Met een ...

    Overdracht

    Huurprijs
    € 3.000 per maand
    • Inclusief: Servicekosten
    Prijs per m²
    € 14
    Aangeboden sinds
    04-04-2026
    Status
    Te huur
    Beschikbaar
    Per direct
    Borg
    € 3.000
    Interieur
    Gestoffeerd
    Onderhoudsstaat
    Zeer goed

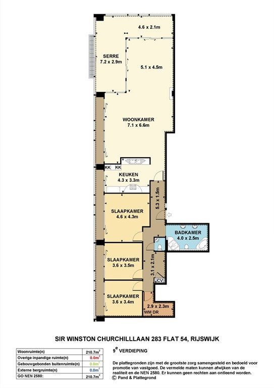
    Oppervlakte en inhoud

    Woonoppervlakte
    210 m²
    Inhoud
    630 m³

    Bouw

    Type woning
    Appartement Bekijk alle appartementen in Rijswijk
    Soort woning
    Bovenwoning, Appartement
    Soort bouw
    Bestaande bouw
    Bouwjaar
    1997
    Ligging
    • Aan een rustige weg
    • In een woonwijk
    • Nabij het openbaar vervoer
    • Nabij een school
    • Vrij uitzicht

    Indeling

    Aantal kamers
    4
    Aantal slaapkamers
    3
    Aantal badkamers
    1
    Aantal woonlagen
    1
    Verdieping
    9

    Buitenruimte

    Balkon
    Niet aanwezig
    Dakterras
    Niet aanwezig

    Parkeergelegenheid

    Aanwezig
    Ja
    Soort parkeergelegenheid
    Garage

    Garage

    Aanwezig
    Nee

    Door aanbieder geplaatst met beschikbaarheidscontrole.

    Voorzieningen in de buurt

    Contact met de verhuurder

    Door te reageren op de woning kom je rechtstreeks in contact met de verhuurder of de makelaar van de verhuurder.

    Reageer op deze woning
    Reageer

    Gemiddelde huurprijs in Rijswijk de afgelopen 12 maanden

    Gemiddelde huurprijsontwikkeling in Rijswijk
    Maand Gemiddelde huurprijs
    May 2025 1436.14
    Jun 2025 1344.43
    Jul 2025 2100.33
    Aug 2025 1263.3
    Sep 2025 1343.53
    Oct 2025 1526.51
    Nov 2025 1625.31
    Dec 2025 1230.7
    Jan 2026 1434.03
    Feb 2026 1396.04
    Mar 2026 1602.09
    Apr 2026 1815

    Vergelijkbare woningen

    Stortenbekerstraat

    2525SV Den Haag (Schildersbuurt-West)
    € 3.000 per maand

    Joseph Ledelstraat

    2518PM Den Haag (Rond de Energiecentrale)
    € 3.100 per maand

    Denneweg

    2514CD Den Haag (Voorhout)
    € 2.950 per maand

    Parkstraat

    2514JD Den Haag (Voorhout)
    € 2.875 per maand

    Prof. Bosschastraat

    2628HL Delft (Wippolder-Zuid)
    € 2.995 per maand

    Beeklaan

    2562AZ Den Haag (Sweelinckplein e.o.)
    € 3.000 per maand

    Voormeerstraat

    2493WH Den Haag (Rietbuurt)
    € 3.150 per maand

    Gaasterlandlaan

    2548NG Den Haag (Hoge Veld)
    € 2.750 per maand

    Laan van Meerdervoort

    2517AC Den Haag (Zeeheldenkwartier)
    € 2.950 per maand

    Newtonplein

    2562JT Den Haag (Valkenboskwartier)
    € 2.795 per maand

    Nieuwste woningen in Rijswijk

    Steenvoordelaan

    € 1.091 per maand

    Broekmolenweg

    € 3.500 per maand

    Karel Doormanlaan

    Prijs op aanvraag

    Leeuwendaallaan

    € 1.450 per maand

    Leeuwendaallaan

    € 1.450 per maand

    Generaal Spoorlaan

    € 1.495 per maand

    Laat ons je op de hoogte houden van vergelijkbare woningen!

    Actieve filters

    • Rijswijk
    • Appartement
    • Prijs vanaf € 2.500
    • Prijs tot € 3.000
    Enkel beschikbaar voor woningruil

    Woningruil is een proces waarbij twee huurders permanent van huurwoning ruilen.

    Om te kunnen ruilen, moeten beide partijen een huurwoning hebben, en de ruil is onder voorbehoud van goedkeuring door de verhuurders.

    Meer weten over woningruil? Lees hier meer over