Spring naar inhoud
  • Grootste aanbod huurwoningen
  • Automatiseer jouw zoektocht
  • Direct updates bij nieuw aanbod
  • Vertrouwd sinds 2010
  • Grootste aanbod huurwoningen
  • Grootste aanbod huurwoningen
  • Automatiseer jouw zoektocht
  • Direct updates bij nieuw aanbod
  • Vertrouwd sinds 2010
  • Grootste aanbod huurwoningen

    Appartement Prinsegracht in Den Haag

    Bekijk kaart
    2512 GA (Zuidwal)
    € 2.750 per maand
    • 125 m²
    • 4 kamers
    • Gestoffeerd of gemeubileerd

    Over deze woning

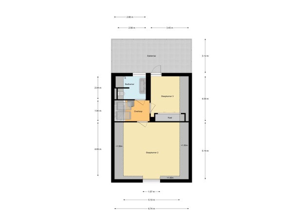
    In het levendige centrum van Den Haag vind je dit ruime en deels gemeubileerde appartement van ca. 125 m², verdeeld over twee verdiepingen. Je betreedt het via een entree op straatniveau en stijgt naar de derde verdieping. Hier is een lichte woon-/eetkamer met hoge plafonds en grote ramen, een ...

    Overdracht

    Huurprijs
    € 2.750 per maand
    Prijs per m²
    € 22
    Aangeboden sinds
    16-03-2026
    Status
    Te huur
    Beschikbaar
    Per direct
    Interieur
    Gestoffeerd of gemeubileerd
    Onderhoudsstaat
    Goed

    Oppervlakte en inhoud

    Woonoppervlakte
    125 m²
    Inhoud
    375 m³

    Bouw

    Type woning
    Appartement Bekijk alle appartementen in Den Haag
    Soort woning
    Maisonnette, Appartement
    Soort bouw
    Bestaande bouw
    Bouwjaar
    1750
    Ligging
    In het centrum

    Indeling

    Aantal kamers
    4
    Aantal slaapkamers
    3
    Aantal badkamers
    1
    Aantal woonlagen
    2
    Verdieping
    3
    Voorzieningen
    • Buitenzonwering
    • Dakterras
    • Douche
    • Toilet
    • Wasruimte

    Buitenruimte

    Balkon
    Niet aanwezig
    Tuin
    Niet aanwezig
    Dakterras
    Aanwezig

    Energie

    Isolatie
    Dubbele beglazing, Vloerisolatie, Dakisolatie, Muurisolatie
    Verwarming
    CV-ketel
    Warm water
    CV-ketel
    Energielabel
    B

    Parkeergelegenheid

    Aanwezig
    Ja
    Soort parkeergelegenheid
    Op eigen terrein

    Garage

    Aanwezig
    Ja
    Omschrijving
    Parkeerplaats

    Door aanbieder geplaatst met beschikbaarheidscontrole.

    Voorzieningen in de buurt

    Contact met de verhuurder

    Door te reageren op de woning kom je rechtstreeks in contact met de verhuurder of de makelaar van de verhuurder.

    Reageer op deze woning
    Reageer

    Vergelijkbare woningen

    Herengracht

    2511EJ Den Haag (Voorhout)
    € 2.750 per maand

    Zeestraat

    2518DH Den Haag (Willemspark)
    € 2.775 per maand

    Nassaulaan

    2514JS Den Haag (Willemspark)
    € 2.600 per maand

    Breitnerlaan

    2596GZ Den Haag (Uilennest)
    € 2.595 per maand

    De Perponcherstraat

    2518SR Den Haag (Koningsplein e.o.)
    € 2.575 per maand

    Junostraat

    2516BR Den Haag (Binckhorst)
    € 2.795 per maand

    Citerstraat

    2287EP Rijswijk (Muziekbuurt)
    € 2.650 per maand

    Meppelweg

    2544BN Den Haag (Morgenstond-West)
    € 2.950 per maand

    Anna van Buerenplein

    2595DE Den Haag (Rivierenbuurt-Noord)
    € 3.000 per maand

    Van Bylandtstraat

    2562GC Den Haag (Koningsplein e.o.)
    € 2.500 per maand

    Nieuwste woningen in Den Haag

    Bezuidenhoutseweg

    € 3.100 per maand

    1e Lulofsdwarsstraat

    € 858 per maand

    Kalvermarkt

    € 2.000 per maand

    Loudonstraat

    € 2.395 per maand

    Sibergstraat

    € 985 per maand

    Slachthuisstraat

    € 1.375 per maand

    Laat ons je op de hoogte houden van vergelijkbare woningen!

    Actieve filters

    • Den Haag
    • Appartement
    • Prijs vanaf € 2.500
    • Prijs tot € 3.000
    Enkel beschikbaar voor woningruil

    Woningruil is een proces waarbij twee huurders permanent van huurwoning ruilen.

    Om te kunnen ruilen, moeten beide partijen een huurwoning hebben, en de ruil is onder voorbehoud van goedkeuring door de verhuurders.

    Meer weten over woningruil? Lees hier meer over