Spring naar inhoud
  • Grootste aanbod huurwoningen
  • Automatiseer jouw zoektocht
  • Direct updates bij nieuw aanbod
  • Vertrouwd sinds 2010
  • Grootste aanbod huurwoningen
  • Grootste aanbod huurwoningen
  • Automatiseer jouw zoektocht
  • Direct updates bij nieuw aanbod
  • Vertrouwd sinds 2010
  • Grootste aanbod huurwoningen
    Nieuw

    Appartement Vlamoven in Delfzijl

    Bekijk kaart
    9934 ND (Steenbakkersbuurt)
    Prijs op aanvraag
    • 81 m²
    • 4 kamers
    • Kaal

    Over deze woning

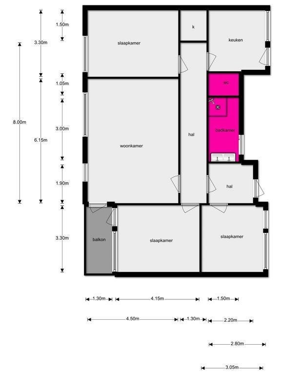
    Appartement met drie slaapkamers, lift en balkon Ligging Mooi en ruim 4-kamer appartement op een rustige locatie in de wijk West ll, ook bekend als Steenbakkersbuurt in Delfzijl. In de directe nabijheid van een modern Kindcentrum, een Gezondheidscentrum, winkels, kinderopvang en een NS-station. ...

    Overdracht

    Huurprijs
    Prijs op aanvraag
    Aangeboden sinds
    15-04-2026
    Status
    Te huur
    Beschikbaar
    Per 01-05-2026
    Contractvorm
    Onbepaalde tijd
    Huurperiode
    Minimaal 12 maanden
    Borg
    € 1.989
    Interieur
    Kaal
    Onderhoudsstaat
    Redelijk

    Oppervlakte en inhoud

    Woonoppervlakte
    81 m²

    Bouw

    Type woning
    Appartement Bekijk alle appartementen in Delfzijl
    Soort woning
    Galerijflat, Appartement
    Soort bouw
    Bestaande bouw
    Bouwjaar
    1971
    Ligging
    • In een woonwijk
    • Nabij het openbaar vervoer
    • Nabij een school
    • Nabij een winkelcentrum

    Indeling

    Aantal kamers
    4
    Aantal slaapkamers
    3
    Aantal badkamers
    1
    Aantal woonlagen
    4
    Voorzieningen
    • Toilet
    • Douche

    Buitenruimte

    Balkon
    Niet aanwezig
    Tuin
    Niet aanwezig
    Dakterras
    Niet aanwezig

    Energie

    Verwarming
    CV-ketel
    Energielabel
    C

    Bergruimte

    Schuur/Berging
    Niet aanwezig

    Parkeergelegenheid

    Aanwezig
    Ja
    Soort parkeergelegenheid
    Openbaar

    Garage

    Aanwezig
    Nee

    Huurvoorwaarden

    Roken toegestaan
    Nee
    Huisdieren toegestaan
    Nee

    Door aanbieder geplaatst met beschikbaarheidscontrole.

    Voorzieningen in de buurt

    Contact met de verhuurder

    Door te reageren op de woning kom je rechtstreeks in contact met de verhuurder of de makelaar van de verhuurder.

    Reageer op deze woning
    Reageer

    Vergelijkbare woningen

    Bovenweg

    9649CC Muntendam (Muntendam-west)
    € 1.075 per maand

    Bazuinslaan

    9781HM Bedum (Bedum Noord - Oost)
    € 857 per maand

    Damsterdiep

    9713EL Groningen (Gorechtbuurt)
    € 1.003 per maand

    Verlengde Nieuwstraat

    9724HA Groningen (Oosterpoort)
    € 995 per maand

    Hofstraat

    9712JB Groningen (Binnenstad-Noord)
    € 1.022 per maand

    Helper Oostsingel

    9722AP Groningen (Helpman)
    € 1.056 per maand

    Pleiadenlaan

    9742NE Groningen (Paddepoel-Zuid)
    € 932 per maand

    Winschoterweg

    9723CG Groningen (Roodehaan)
    € 820 per maand

    Heinsiusstraat

    9716AS Groningen (De Hoogte)
    € 884 per maand

    Planetenlaan

    9742HS Groningen (Paddepoel-Noord)
    € 1.035 per maand

    Nieuwste woningen in Delfzijl

    Singel

    € 2.000 per maand

    Landstraat

    € 1.615 per maand

    Laat ons je op de hoogte houden van vergelijkbare woningen!

    Actieve filters

    • Delfzijl
    • Appartement
    Enkel beschikbaar voor woningruil

    Woningruil is een proces waarbij twee huurders permanent van huurwoning ruilen.

    Om te kunnen ruilen, moeten beide partijen een huurwoning hebben, en de ruil is onder voorbehoud van goedkeuring door de verhuurders.

    Meer weten over woningruil? Lees hier meer over