Spring naar inhoud
  • Grootste aanbod huurwoningen
  • Automatiseer jouw zoektocht
  • Direct updates bij nieuw aanbod
  • Vertrouwd sinds 2010
  • Grootste aanbod huurwoningen
  • Grootste aanbod huurwoningen
  • Automatiseer jouw zoektocht
  • Direct updates bij nieuw aanbod
  • Vertrouwd sinds 2010
  • Grootste aanbod huurwoningen
    Alleen bij ons

    Appartement Burgemeester Hogguerstraat in Amsterdam

    Bekijk kaart
    1064 EA (Slotermeer-Zuidoost)
    Kale huurpijs: € 2.245 per maand
    • 76 m²
    • 3 kamers
    • Gemeubileerd

    Over deze woning

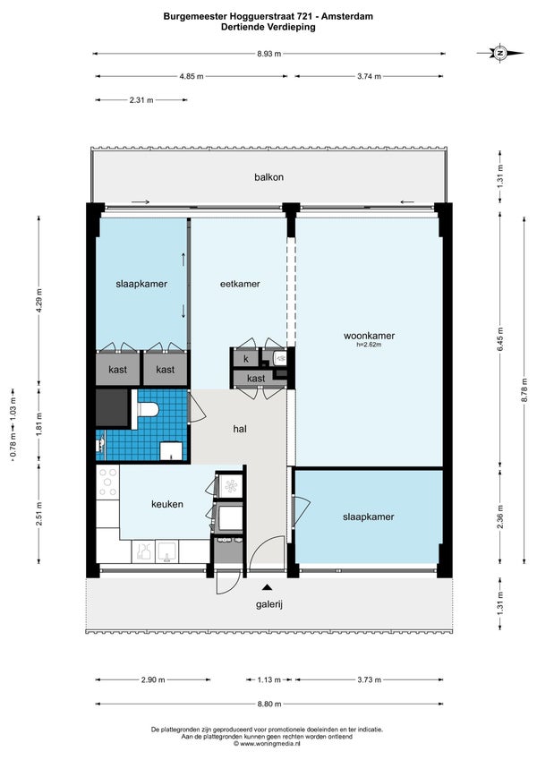
    Objectomschrijving Te huur: een hooggelegen appartement met twee slaapkamers (76 m²) op de 11e verdieping van een goed onderhouden woongebouw met lift. Deze woning biedt een functionele indeling, moderne voorzieningen en een energielabel A, wat zorgt voor een optimaal klimaat en ...

    Overdracht

    Kale huurprijs
    € 2.245 per maand
    Prijs per m²
    € 33
    Aangeboden sinds
    17-04-2026
    Status
    Te huur
    Beschikbaar
    Per direct
    Contractvorm
    Onbepaalde tijd
    Huurperiode
    Minimaal 12 maanden
    Borg
    € 7.500
    Interieur
    Gemeubileerd
    Onderhoudsstaat
    Zeer goed

    Prijs specificatie

    Kale huurprijs
    € 2.245
    Meubels
    € 100

    Voorschot nutsvoorzieningen

    Elektriciteit
    € 40
    Gas
    € 80

    Overige kosten

    Internet
    € 35
    Totale huurprijs
    € 2.500

    Nog zelf regelen: water en televisie

    Oppervlakte en inhoud

    Woonoppervlakte
    76 m²

    Bouw

    Type woning
    Appartement Bekijk alle appartementen in Amsterdam
    Soort woning
    Galerijflat, Appartement
    Soort bouw
    Bestaande bouw
    Bouwjaar
    1965
    Ligging
    • Aan een rustige weg
    • Aan een park
    • In een woonwijk
    • Nabij het openbaar vervoer
    • Nabij een school
    • Vrij uitzicht

    Indeling

    Aantal kamers
    3
    Aantal slaapkamers
    2
    Aantal badkamers
    1
    Aantal woonlagen
    13
    Voorzieningen
    • Intercom
    • Internetaansluiting

    Buitenruimte

    Balkon
    Aanwezig
    Tuin
    Niet aanwezig
    Dakterras
    Niet aanwezig

    Energie

    Isolatie
    Dubbele beglazing
    Verwarming
    Stadsverwarming
    Warm water
    Stadsverwarming
    Energielabel
    A

    Bergruimte

    Schuur/Berging
    Niet aanwezig

    Parkeergelegenheid

    Aanwezig
    Ja
    Soort parkeergelegenheid
    Vergunning

    Garage

    Aanwezig
    Nee

    Huurvoorwaarden

    Roken toegestaan
    Nee
    Huisdieren toegestaan
    Nee
    Doelgroep
    Werkende
    Inkomenseis
    € 12.000
    Maximaal aantal bewoners
    2

    Door aanbieder geplaatst met beschikbaarheidscontrole.

    Voorzieningen in de buurt

    Contact met de verhuurder

    Door te reageren op de woning kom je rechtstreeks in contact met de verhuurder of de makelaar van de verhuurder.

    Reageer op deze woning
    Reageer

    Vergelijkbare woningen

    Erasmusgracht

    1061BL Amsterdam (De Kolenkit)
    € 2.200 per maand

    Elizabeth Anscombestraat

    1062LE Amsterdam (Westlandgracht)
    € 2.197 per maand

    Van Spilbergenstraat

    1057RP Amsterdam (Hoofdweg e.o.)
    € 2.195 per maand

    Van Spilbergenstraat

    1057RN Amsterdam (Hoofdweg e.o.)
    € 2.195 per maand

    Frederik Hendrikplantsoen

    1052XP Amsterdam (Frederik Hendrikbuurt)
    € 2.249 per maand

    Hoofddorpplein

    1059CV Amsterdam (Hoofddorppleinbuurt)
    € 2.325 per maand

    Theseusstraat

    1076XK Amsterdam (Stadionbuurt)
    € 2.300 per maand

    Warmondstraat

    1058KR Amsterdam (Hoofddorppleinbuurt)
    € 2.350 per maand

    Vogelenzangstraat

    1058SW Amsterdam (Hoofddorppleinbuurt)
    € 2.350 per maand

    Wijdesteeg

    1012RN Amsterdam (Burgwallen-Nieuwe Zijde)
    € 2.275 per maand

    Nieuwste woningen in Amsterdam

    Catharina Boudewijnshof

    € 3.000 per maand

    Vrolikstraat

    € 2.650 per maand

    Jan Olphert Vaillantlaan

    € 4.950 per maand

    Eerste Helmersstraat

    € 3.990 per maand

    Hunzestraat

    € 2.200 per maand

    Entrepotbrug

    € 2.300 per maand

    Laat ons je op de hoogte houden van vergelijkbare woningen!

    Actieve filters

    • Amsterdam
    • Appartement
    • Prijs vanaf € 2.000
    • Prijs tot € 2.250
    Enkel beschikbaar voor woningruil

    Woningruil is een proces waarbij twee huurders permanent van huurwoning ruilen.

    Om te kunnen ruilen, moeten beide partijen een huurwoning hebben, en de ruil is onder voorbehoud van goedkeuring door de verhuurders.

    Meer weten over woningruil? Lees hier meer over

    Transparante huurprijs

    De makelaar, die deze woning aanbiedt, heeft een gedetailleerde opbouw van de huurprijs gegeven. Hierdoor is inzichtelijk wat de totale huurprijs is (inclusief bijkomende kosten zoals elektriciteit, internet of servicekosten), zodat jij weet waar je aan toe bent. Als een makelaar de totale huurprijs invult, noemen wij dit een transparante huurprijs.

    Wij doen er alles aan om jou duidelijkheid te geven over de te betalen huurprijs. Heb je toch twijfels of zie je een andere huurprijs op de website van de makelaar? Laat het ons weten.

    Meer informatie