Skip to content
  • Largest supply of rental properties
  • Automate your search
  • Direct alerts on new listings
  • Trusted since 2010
  • Largest supply of rental properties
  • Largest supply of rental properties
  • Automate your search
  • Direct alerts on new listings
  • Trusted since 2010
  • Largest supply of rental properties
    New

    House Baronielaan in Wassenaar

    Show on map
    2242 RC (Dorp Wassenaar)
    €3,475 pcm
    • 156 m²
    • 5 rooms
    • Furnished

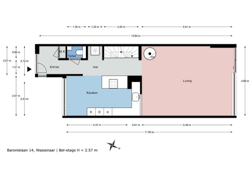
    Description

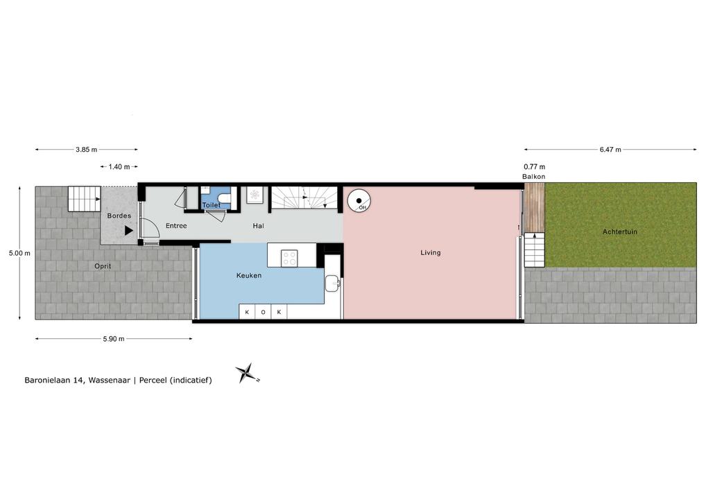
    This superbly renovated furnished family home in Wassenaar is ideal for families. Nestled in a quiet neighborhood, it is within walking distance to the center and near schools and the beach. Entering through the hall, you find a luxurious kitchen and a cozy living room featuring an energy-efficient ...

    Transfer

    Rental price
    € 3.475 per month
    Price per m²
    € 22
    Offered since
    28-04-2026
    Status
    For rent
    Available
    Immediately
    Interior
    Furnished

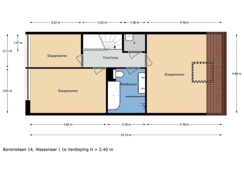
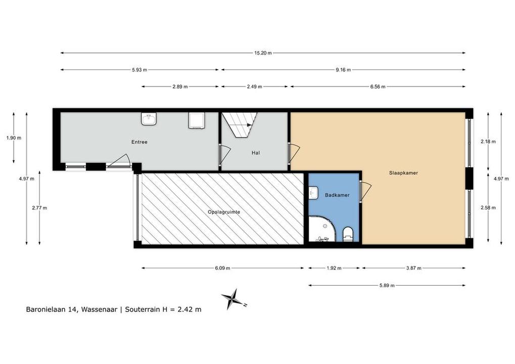
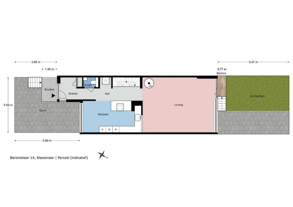
    Surface area and volume

    Living area
    156 m²

    Construction

    Type of house
    House View all houses in Wassenaar
    Type of house
    Terraced house, Family home
    Type of construction
    Existing building
    Year of construction
    1981

    Layout

    Number of rooms
    5
    Number of bedrooms
    4
    Number of bathrooms
    2
    Facilities
    Bath

    Outdoor space

    Garden
    Present
    Roof terrace
    Not present

    Posted by provider with availability check.

    What's nearby

    Contact the Landlord

    By responding to this property, you will be directly connected with the landlord or their real estate agent.

    Create an account

    Enter your email address to create an account and contact the rental provider.

    Gemiddelde huurprijs in Wassenaar de afgelopen 12 maanden

    Gemiddelde huurprijsontwikkeling in Wassenaar
    Maand Gemiddelde huurprijs
    Mar 2025 4371.67
    Apr 2025 3196
    May 2025 3709.6
    Jun 2025 3770.29
    Jul 2025 4485.91
    Aug 2025 3626.67
    Sep 2025 4315.21
    Oct 2025 5479.17
    Nov 2025 4721.39
    Dec 2025 3050
    Jan 2026 3825.76
    Feb 2026 3507.36

    Similar properties

    Hugo de Grootstraat

    2242TL Wassenaar (Den Deijl)
    €3,250 pcm

    Waalsdorperlaan

    2244BL Wassenaar (Duindigt-Groenendaal)
    €3,500 pcm

    Maria Stuartplein

    2595BW Den Haag (Bezuidenhout-West)
    €3,341 pcm

    Gevers Deynootplein

    2586CT Den Haag (Scheveningen Badplaats)
    €3,500 pcm

    Wijnhaven

    2511GA Den Haag (Uilebomen)
    €3,600 pcm

    Adelheidstraat

    2595ED Den Haag (Bezuidenhout-West)
    €3,195 pcm

    Denneweg

    2514CN Den Haag (Voorhout)
    €3,350 pcm

    Eisenhowerlaan

    2517KL Den Haag (Zorgvliet)
    €3,340 pcm

    Nassaulaan

    2514JS Den Haag (Willemspark)
    €3,250 pcm

    Voormeerstraat

    2493WH Den Haag (Rietbuurt)
    €3,500 pcm

    Newest properties in Wassenaar

    Domineeslaantje

    €2,250 per month

    Van Zuylen van Nijeveltstraat

    €4,200 per month

    Van Polanenpark

    €2,700 per month

    Stoeplaan

    €4,000 per month

    Schout bij Nacht Doormanlaan

    €5,500 per month

    Waalsdorperlaan

    €3,500 per month

    Let us keep you informed about similar properties!

    Your search

    • Wassenaar
    • House
    • Price from € 3.000
    • Price to € 4.000
    Only available for home swap

    Home swap is a process where two tenants permanently swap rental homes.

    To be able to swap, both parties must have a rental home, and the swap is subject to approval by the landlords.

    Want to know more about home swap? Read more here