Skip to content
  • Largest supply of rental properties
  • Automate your search
  • Direct alerts on new listings
  • Trusted since 2010
  • Largest supply of rental properties
  • Largest supply of rental properties
  • Automate your search
  • Direct alerts on new listings
  • Trusted since 2010
  • Largest supply of rental properties
    New

    Flat Hondsrug in Utrecht

    Show on map
    3524 BZ (Lunetten-Noord)
    €1,749 pcm
    • 57 m²
    • 2 rooms
    • Furnished

    Description

    Update April 24: This apartment is still available. I am currently looking for a wonderful tenant who fits the criteria listed below. For those looking to move quickly, the lease is available to start as early as May. This apartment is intended for tenants looking for a temporary lease. ...

    Transfer

    Rental price
    € 1.749 per month
    Price per m²
    € 31
    Offered since
    24-04-2026
    Status
    For rent
    Available
    From 01-05-2026
    Contract type
    Temporary rental
    Deposit
    € 3.250
    Interior
    Furnished
    Upkeep
    Excellent

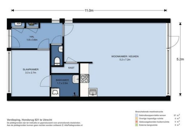
    Surface area and volume

    Living area
    57 m²
    Volume
    175 m³

    Construction

    Type of house
    Flat View all flats in Utrecht
    Type of house
    Ground floor, Apartment
    Type of construction
    Existing building
    Year of construction
    1983
    Location
    • On a quiet road
    • in a residential area

    Layout

    Number of rooms
    2
    Number of bedrooms
    1
    Number of bathrooms
    1
    Number of floors
    1
    Floor
    1
    Facilities
    • Toilet
    • Shower

    Outdoor space

    Balcony
    Not present
    Garden
    Present (60 m², located on the south)
    Back entrance
    Present
    Roof terrace
    Not present

    Energy

    Hot water
    Central heating boiler
    Energy rating
    A+

    Storage space

    Shed/Storeroom
    Present

    Parking facilities

    Present
    Yes
    Type of parking
    Public

    Garage

    Present
    No

    Posted by provider with availability check.

    What's nearby

    Contact the Landlord

    By responding to this property, you will be directly connected with the landlord or their real estate agent.

    Respond to this property
    Respond

    Gemiddelde huurprijs in Utrecht de afgelopen 12 maanden

    Gemiddelde huurprijsontwikkeling in Utrecht
    Maand Gemiddelde huurprijs
    Apr 2025 1625.74
    May 2025 1628.16
    Jun 2025 1638.94
    Jul 2025 1696.46
    Aug 2025 1670.25
    Sep 2025 1713.18
    Oct 2025 1639.88
    Nov 2025 1704.64
    Dec 2025 1592.71
    Jan 2026 1732.24
    Feb 2026 1720.67
    Mar 2026 1729.13

    Similar properties

    Kanaalweg

    3527KX Utrecht (Transwijk-Noord)
    €1,795 pcm

    Van Sijpesteijnkade

    3521AH Utrecht (Hoog-Catharijne NS en Jaarbeurs)
    €1,716 pcm

    Jongeneelstraat

    3513DB Utrecht (Pijlsweerd-Zuid)
    €1,810 pcm

    Domstraat

    3512JB Utrecht (Domplein, Neude, Janskerkhof)
    €1,650 pcm

    Twellosebeeklaan

    3521DS Utrecht (Dichterswijk)
    €1,775 pcm

    Bernadottelaan

    3527GB Utrecht (Kanaleneiland-Noord)
    €1,850 pcm

    Catharijnesingel

    3511GV Utrecht (Hooch Boulandt)
    €1,695 pcm

    Hemdsmouwsteeg

    3512TC Utrecht (Breedstraat en Plompetorengracht en omgeving)
    €1,820 pcm

    Parelgras

    3994NS Houten (Grassen)
    €1,750 pcm

    David van Mollemstraat

    3513GA Utrecht (Pijlsweerd-Zuid)
    €1,625 pcm

    Newest properties in Utrecht

    Camera Obscuradreef

    €986 per month

    Twellosebeeklaan

    €1,300 per month

    Hildebranddreef

    €1,399 per month

    Kintgenshaven

    €2,450 per month

    Schoutenstraat

    €2,995 per month

    C. van Maasdijkstraat

    €1,475 per month

    Let us keep you informed about similar properties!

    Your search

    • Utrecht
    • Apartment
    • Price from € 1.500
    • Price to € 1.750
    Only available for home swap

    Home swap is a process where two tenants permanently swap rental homes.

    To be able to swap, both parties must have a rental home, and the swap is subject to approval by the landlords.

    Want to know more about home swap? Read more here