Skip to content
  • Largest supply of rental properties
  • Automate your search
  • Direct alerts on new listings
  • Trusted since 2010
  • Largest supply of rental properties
  • Largest supply of rental properties
  • Automate your search
  • Direct alerts on new listings
  • Trusted since 2010
  • Largest supply of rental properties
    New

    Flat Arthur van Schendelstraat in Utrecht

    Show on map
    3511 MA (Hooch Boulandt)
    €2,400 pcm
    • 78 m²
    • 3 rooms
    • 10 m²

    Description

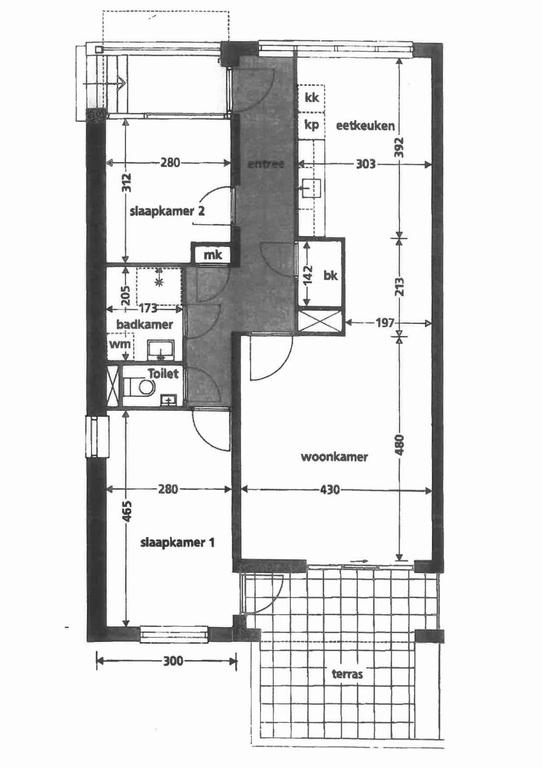
    Well maintained 3-room apartment (approx. 78 m²) on the ground floor with private entrance and a lovely backyard on the south west! The apartment has a view of the communal courtyard and a private storage room in the basement below. The location is excellent, namely within walking distance of the ...

    Transfer

    Rental price
    € 2.400 per month
    Price per m²
    € 31
    Offered since
    22-04-2026
    Status
    For rent
    Available
    From 01-06-2026
    Upkeep
    Excellent

    Surface area and volume

    Living area
    78 m²
    Volume
    225 m³

    Construction

    Type of house
    Flat View all flats in Utrecht
    Type of house
    Porch flat, Apartment
    Type of construction
    Existing building
    Year of construction
    1995
    Location
    • On a quiet road
    • in a residential area

    Layout

    Number of rooms
    3
    Number of bedrooms
    2
    Number of bathrooms
    1
    Number of floors
    1
    Floor
    1
    Facilities
    • Bath
    • Storage space
    • Toilet

    Outdoor space

    Balcony
    Not present
    Garden
    Present (10 m², located on the south-west)
    Garden description
    achtertuin
    Back entrance
    Not present
    Roof terrace
    Not present

    Energy

    Insulation
    Double glazing, Fully insulated
    Hot water
    Central heating
    Energy rating
    A

    Storage space

    Shed/Storeroom
    Present
    Description
    Inpandig

    Parking facilities

    Present
    Yes
    Type of parking
    Paid

    Garage

    Present
    No

    Posted by provider with availability check.

    What's nearby

    Contact the Landlord

    By responding to this property, you will be directly connected with the landlord or their real estate agent.

    Respond to this property
    Respond

    Gemiddelde huurprijs in Utrecht de afgelopen 12 maanden

    Gemiddelde huurprijsontwikkeling in Utrecht
    Maand Gemiddelde huurprijs
    Mar 2025 1614.65
    Apr 2025 1579.03
    May 2025 1626.46
    Jun 2025 1641.71
    Jul 2025 1696.46
    Aug 2025 1667.25
    Sep 2025 1713.18
    Oct 2025 1638.87
    Nov 2025 1704.89
    Dec 2025 1592.71
    Jan 2026 1740.17
    Feb 2026 1769.95

    Similar properties

    Hendrik Tollensstraat

    3521XX Utrecht (Dichterswijk)
    €2,400 pcm

    Oudegracht

    3511PA Utrecht (Springweg en omgeving Geertebuurt)
    €2,300 pcm

    Jansveld

    3512BE Utrecht (Domplein, Neude, Janskerkhof)
    €2,500 pcm

    Padangstraat

    3531TC Utrecht (Lombok-West)
    €2,295 pcm

    Arthur van Schendelstraat

    3511MC Utrecht (Hooch Boulandt)
    €2,415 pcm

    Oudwijkerveldstraat

    3581JJ Utrecht (Oudwijk)
    €2,350 pcm

    Lange Elisabethstraat

    3511JD Utrecht (Lange Elisabethstraat, Mariaplaats en omgeving)
    €2,485 pcm

    Tolsteegplantsoen

    3523AN Utrecht (Tolsteeg en Rotsoord)
    €2,595 pcm

    Hoola van Nootenstraat

    3521HB Utrecht (Hoog-Catharijne NS en Jaarbeurs)
    €2,350 pcm

    Willem Walravenhove

    3437ZK Nieuwegein (Hoven-West)
    €2,250 pcm

    Newest properties in Utrecht

    Jagerskade

    €1,973 per month

    Pagelaan

    €441 per month

    Biltstraat

    €1,090 per month

    Willem Frederik Hermansstraat

    €1,228 per month

    Gerbrandyhof

    €1,214 per month

    Bisschop Tulpijndreef

    €1,244 per month

    Let us keep you informed about similar properties!

    Your search

    • Utrecht
    • Apartment
    • Price from € 2.250
    • Price to € 2.500
    Only available for home swap

    Home swap is a process where two tenants permanently swap rental homes.

    To be able to swap, both parties must have a rental home, and the swap is subject to approval by the landlords.

    Want to know more about home swap? Read more here